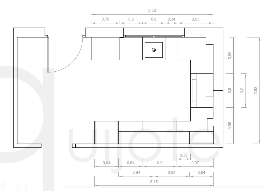
En esta ocasión os enseñamos este proyecto de cocina distribuida en forma de U realizada con mobiliario lacado blanco y paredes estucadas. Si algo destaca en esta cocina es la gran bancada estratificada que imita madera que nos aporta una gran zona de trabajo distribuida en varias zonas y además contrasta con el estucado de tonos rosáceos. La elección de sustituir los azulejos por este estuco marca la diferencia con otras cocinas blancas.


Si hablamos de la distribución en forma de U, comenzamos con la pared derecha con una semi-columna con un conjunto horno microondas de cristal blanco marca Edesa. Esta pieza tiene un cacerolero en la parte inferior y a continuación con una serie de muebles bajos donde encontramos una de las dos grandes cajoneras que nos facilitan el acceso al almacenaje. Junto a esta la rinconera a la que se acede con dos puertas que nos dirige a la zona de cocción compuesta por otra gran cajonera y sobre esta una placa de cristal gas de 5 fuegos y una bonita campana Thalassa de cristal blanco marca Cata.
En la parte superior colocamos más almacenaje. A ambos lados dos módulos con apertura superior ambos adaptados a la iregularidad de los pilares para aprobechar al maximo el espacio. El de la izquierda de la campana tiene un accesorio platero.
Si continuamos con la distribución de los muebles bajos, arrancamos la zona de agua con otra rinconera de dos puertas muy práctica y un accesorio aceitero – especiero. Continuamos con un fregadero de dos senos bajo la ventana y un lavavajillas integrado. Para terminar un frigorífico embellecido con paneles también lacados y un altillo que termina la composición cerrada al techo.

Hay dos diferencias con el proyecto inicial, la primera, la situación de los muebles altos, que el proyecto inicial colocábamos en la pared de la derecha y dejaba la zona de la campana libre. Al ubicar los muebles junto a la campana nos ha permitido dejar una composición mucho más clara en la parte izquierda y hemos disimulado los pilares que se ocultan tras los muebles. La otra diferencia es el altillo sobre el frigorífico ya que en el proyecto inicial no se contemplaba.

El resultado una práctica y bonita cocina con una gran zona de trabajo y bastante almacenaje.




