En esta ocasión os queríamos enseñar está bonita cocina en terminación mate. Para las puertas y paneles del mobiliario se ha elegido estratificado con un efecto seda muy cálido y agradable al tacto. Además esta terminación es antihuellas por lo que resulta muy sufrida.
El color elegido para la cocina ha sido un blanco roto un poco cálido terminándolo con una bonita encimera de porcelánico y electrodomesticos negros.
En busca de una línea minimalista se ha utilizando un tirador integrado y puertas de gran tamaño, reduciendo el rodapié y fabricando en una medida especial los muebles altos para llevarlos hasta el techo.
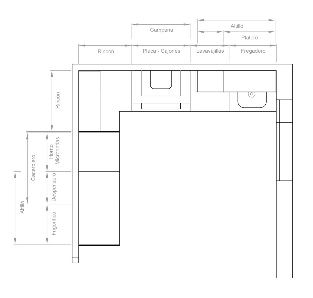
La distribución de la cocina está realizada en forma de L, situando en la pared izquierda la zona de almacenaje, horno, microondas y en la pared derecha la zona de cocción y de aguas.
En la pared de la izquierda nos encontramos con el hueco del frigorífico, junto a un despensero y a continuación la columna horno microondas.
La realización del mobiliario a medida nos ha permitido cruzar un gran cajón bajo el despensero y la columna horno microondas lo que nos permite acceder más cómodamente a ese espacio y además también hemos cruzado el altillo de la parte superior creando un gran espacio de almacenaje. en la columna situamos un elegante conjunto de horno – microondas de cristal negro marca Cata.

Continuamos con el rincón donde se ha realizado un mueble a medida con la apertura de las dos puertas a la vez lo que hace es espacio más accesible. En la parte superior dos armarios con puertas que abren a derecha.


Ya en la siguiente pared continuamos con la zona de cocción con una placa de inducción sobre una gran cajonera. La campana elegida también es de cristal negro a juego con los electrodomésticos.

La zona sanitaria comienza con la lavadora. Hemos suministrado al cliente una puerta del mismo material para que la guarde, porque en el futuro piensa poner un lavavajillas integrado en ese hueco.
Un fregadero bajo encimera junto con un precioso grifo con detalles negros son el centro de esta zona.

En la parte superior, un gran mueble con 2 puertas de apertura superior. El interior del mueble queda dividido para colocar el platero y otro espacio.

El resultado una elegante y funcional cocina te esperamos que os guste.

