La cocina que os queremos mostrar la instalamos en Madrid el pasado año, y la hemos realizada a medida con puertas lacadas en un gris cálido.
La cocina, situada en un lugar privilegiado de la vivienda, junto a un patio, y su mobiliario queda dividido en una zona de cocinado con distribución en forma de L y otra zona con una armariada que cubre una pared entera.

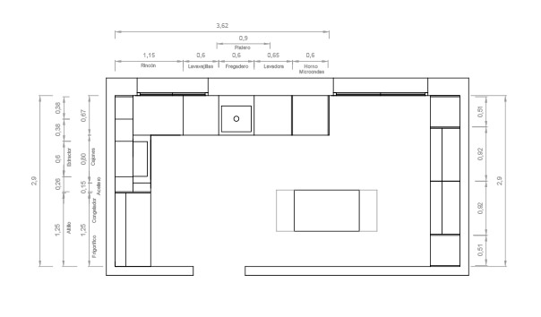
Comenzamos la cocina con un “frigorífico + congelador”, lo que conocemos como un “combi”. Estos electrodomésticos son ideales por su gran capacidad, ideales para gente que no realiza la compra a diario. Sobre estos, fabricamos un gran altillo con puerta abatible. A continuación en la parte baja encontramos una gran cajonera con la zona de fuegos, definida por una placa cristal gas y encima un grupo filtrante que queda completamente oculto tras el mueble alto. Los muebles altos continúan con una tercera puerta gemela y unos estantes que camuflan unas llaves del agua que hay en esa pared. Estos son los únicos muebles altos en esta cocina.
Al girar la pared encontramos muebles bajos con cuatro puertas gemelas. La primera es por la que acedemos al rincón. La siguiente puerta es de almacenaje y la siguiente es la del fregadero. Por último, la cuarta puerta oculta un lavavajillas integrado y para cerrar la composición de esta zona decocinado, una semicolumna con el horno y el microondas y en la parte baja un cajón.
Las puertas y paneles esta lacada en un gris cálido adornadas con un bonito tirador colocado en horizontal. La encimera es de silestone, un tono marengo y como revestimiento de la pared unos bonitos azulejos con relieve. En nuestra opinion, esta cocina que combina perfectamente una estilo muy contemporánea con algún toque más clásico que da calidez al conjunto.

El mobiliario de la cocina no termina ahí, ya que para la pared enfrentada a la cocina, hemos diseñado y realizado un mueble con grandes dimensiones que cubre toda una pared. Esta pieza no solo cumple una misión decorativa, sino que resulta muy práctico gracias a su gran capacidad de almacenaje.

En el centro encontramos dos cajoneras grandes con tres cajones cada una. A ambos lados dos columnas, la de la izquierda es un escobero con unos estantes para productos de limpieza y la de la derecha un despensero. Sobre las cajoneras, en los extremos dos columnas con más almacenaje y un hueco para el televisor en el centro. En la parte superior cuatro vitrinas donde colocar esas piezas especiales que queremos tener a la vista.
Esperamos que os guste este trabajo y pronto os mostraremos alguno más.




