Esta cocina realizada a medida en terminación antihuellas es una una buena opción que te permite tener una cocina más limpia ya que su acabado supermate y su terminación sedosa agradable al tacto, evita que se adhiera la suciedad y las marcas de dedos sobre todo en aquellas cocinas con tirador integrado.
Al proyectar esta reforma, fue prioritario modificar la ubicación de la puerta de entrada desplazándola unos 70 cm y sustituyéndola por una corredera, con el objetivo de ganar profundidad suficiente para aprovechar la pared de la izquierda. Como podéis ver en el plano del antes y el después, eso nos permite ubicar a mano derecha las piezas más voluminosas de la cocina y realizar una composición ligera y más luminosa en el resto del mobiliario.
La realización del mobiliario a medida, permite aprovechar al máximo el espacio, y convertirlo en un espacio funcional y único, a gusto del cliente.

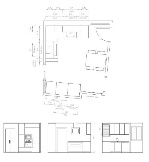
La zona de trabajo de esta cocina está dispuesta en forma de L y comienza con la zona de cocción, continuando con la de aguas. En la otra pared mobiliario en columna hasta el techo.
La primera zona está compuesta por una placa de inducción y una campana decorativa Thalassa BK, ambas de la marca Cata. Bajo la placa, una gran cajonera y un minibotellero extraíble. Continuamos con un mueble rinconero de dos puertas y en la otra pared el mueble fregadero y el lavavajillas. En cuanto a la parte alta, encontramos mobiliario únicamente en la pared de aguas, en primer lugar, una persiana de PVC para acceder más cómodamente al rincón, muebles de almacenaje y un platero. El mobiliario está cerrado hasta el techo.


La pared a la derecha de la entrada está dedicada principalmente al almacenaje, comenzando con el frigorífico, después la columna horno – microondas, donde cruzamos el altillo y terminamos con un despensero donde tambien cruzamos un gran cajón en la parte baja. La cocina contaba con un despensero de obra a modo de armario empotrado en el que se ha forrado totalmente la pared y se han sustituido las puertas por unas del mismo material de la cocina, lo que aporta unidad al conjunto.

En cuanto a la terminación de la cocina, se han combinado dos tonos de mate anti-huellas, eligiendo un gris camel principalmente en los muebles bajos, y un blanco roto en los altos y la zona de almacenaje. Aunque en la parte alta predominan los tonos claros, contamos con algún detalle en oscuro, como por ejemplo el cerramiento. El tirador que hemos utilizado es integrado lo que acentúa la línea recta del diseño de la cocina.

El conjunto está terminado con unos bonitos azulejos con textura de lino, colocando unas franjas verticales entre los muebles altos y los bajos. La encimera es de silestone blanco stelar y el fregadero está colocado bajo encimera.

El resultado una cómoda cocina en la que aprovechamos al máximo el espacio con un aspecto cálido y elegante y una fácil limpieza.
